Nouveau paragraphe
AIDES est une association de santé globale dédiée à la lutte contre le sida et les hépatites depuis 1984 et est reconnue d'utilité publique depuis 1990.
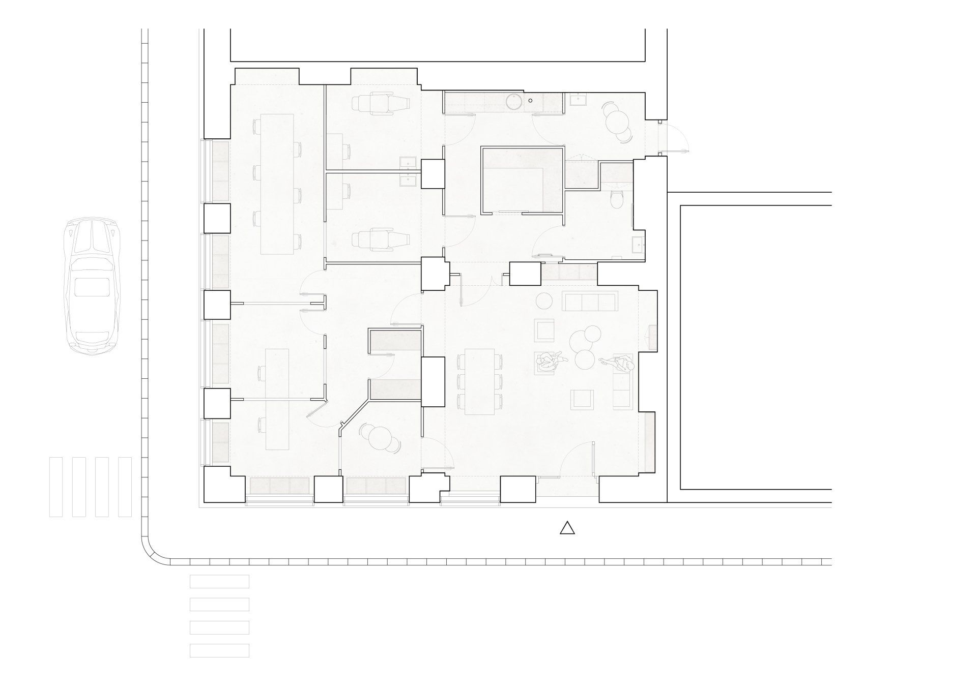
L'association ouvre un nouveau local, le SPOT Marshall, pour développer ses activités de centre de santé et de lieu de mobilisation des volontaires et des personnes impliquées dans AIDES sur la commune.
Conçu pour répondre aux besoins des populations les plus exposées, le SPOT propose dans un même lieu : un test de dépistage rapide au VIH/VHC, un accès à la PrEP (traitement préventif) ainsi que toute une gamme de consultations spécialisées : proctologie, sexologie, addictologie...
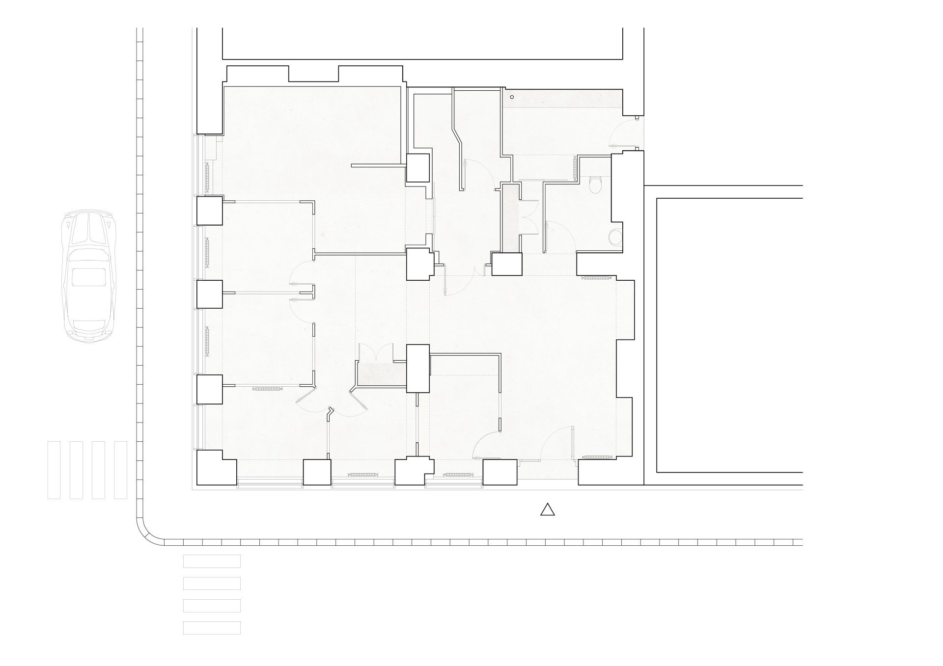
Le local se situe en rez-de-chaussée au croisement de deux rues dans un immeuble niçois construit fin XIX. Précédemment, il était occupé par un centre d'ophtalmologie.
Le plan de base carrée est divisé par une trame porteuse en pierre.
L'objectif a été de réunir dans ce même lieu un espace privé pour le travail administratif et un espace public pour les permanences médicales, les groupes de paroles et les ateliers thématiques.
Tirer parti de la structure a été gage de qualité : les arches en pierres ainsi révélées ont permis de rationaliser les espaces :
- un lieu d'accueil spacieux et fonctionnel ;
- un espace médical plus confidentiel pour les permanences de santé ;
- un espace privé et lumineux pour les militants.
Ainsi, au SPOT, chacun pourra bénéficier d'un accompagnement personnalisé, confidentiel et sans jugement dans une atmosphère chaleureuse et intimiste.







